Fenin
Transformation maison historique
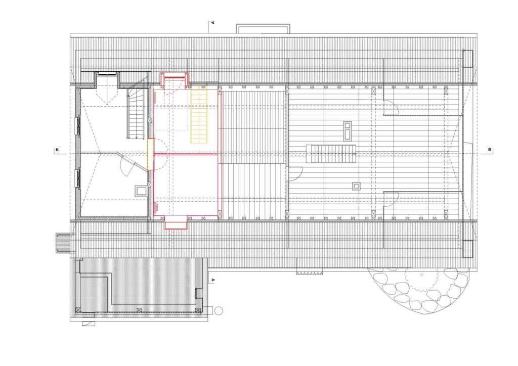
La famille s’agrandit, le logement aussi!
Amรฉnagement des combles avec crรฉation de deux chambres supplรฉmentaires sous la toiture.
Utilisation de bois local, isolation en laine de foin, rรฉemploi d’anciennes portes intรฉrieures en bois, enduits intรฉrieurs ร la chaux.
Localisation
Fenin NE
Maรฎtre de l’ouvrage
Privรฉ
Prestations
Toutes les phases
Rรฉalisation
2021







Lโextension consiste en la construction de 2 nouvelles chambres sous la toiture dans le volume imposant de lโancienne grange datant du XVII รจme siรจcle. Au sud, une gรฉnรฉreuse lucarne amรจnera la vue sur le paysage environnant et dialoguera avec lโouverture existante.
Le choix des matรฉriaux respecte lโenvironnement et la santรฉ des habitants. La charpente du nouveau volume est construite en bois massif et une isolation ร base de fibres dโherbe constituent la nouvelle enveloppe thermique. Les menuiseries intรฉrieures sont rรฉalisรฉes en sapin huilรฉ, les portes intรฉrieures sont rรฉemployรฉes dโun et proviennent dโun bรขtiment rรฉcemment rรฉnovรฉs. Les enduits intรฉrieurs sont rรฉalisรฉs ร base de chaux et de sable jaune du jura pour une atmosphรจre particuliรจre
L’isolation est ร base de fibres dโherbe, une plante ร croissance rapide qui absorbe du CO2 lors de sa croissance : 1kg d’isolation absorbe l’รฉquivalent de 1.5 kg รฉq. CO2 !
Le CO2 est donc stockรฉ dans le bรขtiment, dans son isolation, jusquโร son รฉlimination, ร la fin de vie du bรขtiment. Lโherbe utilisรฉe provient de sabords des routes et aรฉroports, elle nโest donc pas retirรฉe de la bouche des ruminants. Cโest une ressource valorisรฉe ; elle ne passe pas par la case dรฉchet !
Cโest un bon isolant (lambda : 0.040 W/(m.k)), il rรฉgule lโhumiditรฉ et nโรฉmet pas de COV (composรฉ organique volatil)nocifs pour la santรฉ, un matรฉriau phare pour une architecture post carbone.